Pirmas aukštas

| Buto nr. | Plotas | Apdaila | Statusas |
|---|---|---|---|
| 1-1 | 54.82 | Pilna | Laisvas |
| 1-2 | 42.60 | Pilna | Laisvas |
| 1-3 | 43.00 | Pilna | Laisvas |
| 1-4 | 39.99 | Pilna | Laisvas |
| 1-5 | 33.70 | Pilna | Laisvas |
| 1-6 | 38.55 | Pilna | Rezervuotas |
| 1-7 | 34.28 | Pilna | Rezervuotas |

Butai
1 butas
| 1-1 | Svetainė | 11.09 |
| 1-2 | Virtuvė | 8.85 |
| 1-3 | Miegamasis | 8.89 |
| 1-4 | San. mazgas | 7.73 |
| 1-5 | Miegamasis | 11.03 |
| 1-6 | Prieškambaris | 7.23 |
| 54.82 m2 |

Papildoma informacija
2 butas
| 2-1 | Svetainė | 21.60 |
| 2-2 | Miegamasis | 9.64 |
| 2-3 | San. mazgas | 5.48 |
| 2-4 | Prieškambaris | 5.88 |
| 42.60 m2 |

3 butas
| 3-1 | Svetainė | 21.95 |
| 3-2 | Darbo kambarys | 5.35 |
| 3-3 | San. mazgas | 4.07 |
| 3-4 | Miegamasis | 11.63 |
| 43.00 m2 |

4 butas
| 4-1 | Svetainė | 21.61 |
| 4-2 | Miegamasis | 13.14 |
| 4-3 | San. mazgas | 5.24 |
| 39.99 m2 |

5 butas
| 5-1 | Bendra erdvė | 20.87 |
| 5-2 | Miegamasis | 7.02 |
| 5-3 | San. mazgas | 5.81 |
| 33.70 m2 |

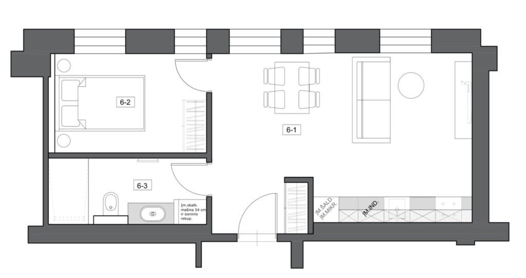
6 butas
| 6-1 | Bendra erdvė | 24.32 |
| 6-2 | Miegamasis | 8.49 |
| 6-3 | San. mazgas | 5.74 |
| 38.55 m2 |

7 butas
| 7-1 | Bendra erdvė | 14.77 |
| 7-2 | Miegamasis | 11.15 |
| 7-3 | Prieškambaris | 3.96 |
| 7-4 | San. mazgas | 4.40 |
| 34.28 m2 |













