Antras aukštas

| Buto nr. | Plotas | Apdaila | Statusas |
|---|---|---|---|
| 2-8 | 31.32 | Dalinė | Laisvas |
| 2-9 | 44.25 | Dalinė | Laisvas |
| 2-10 | 32.75 | Dalinė | Laisvas |
| 2-11 | 21.50 | Dalinė | Laisvas |
| 2-12 | 25.63 | Dalinė | Laisvas |
| 2-13 | 49.50 | Dalinė | Laisvas |

Butai
8 butas
| 8-1 | Bendra erdvė | 17.44 |
| 8-2 | Miegamasis | 9.55 |
| 8-4 | San. mazgas | 4.33 |
| 31.32 m2 |

Papildoma informacija
čia turėtų būti informacija.
9 butas
| 9-1 | Bendra erdvė | 21.28 |
| 9-2 | Miegamasis | 10.07 |
| 9-3 | Miegamasis | 8.20 |
| 9-4 | San. mazgas | 4.70 |
| 44.25 m2 |

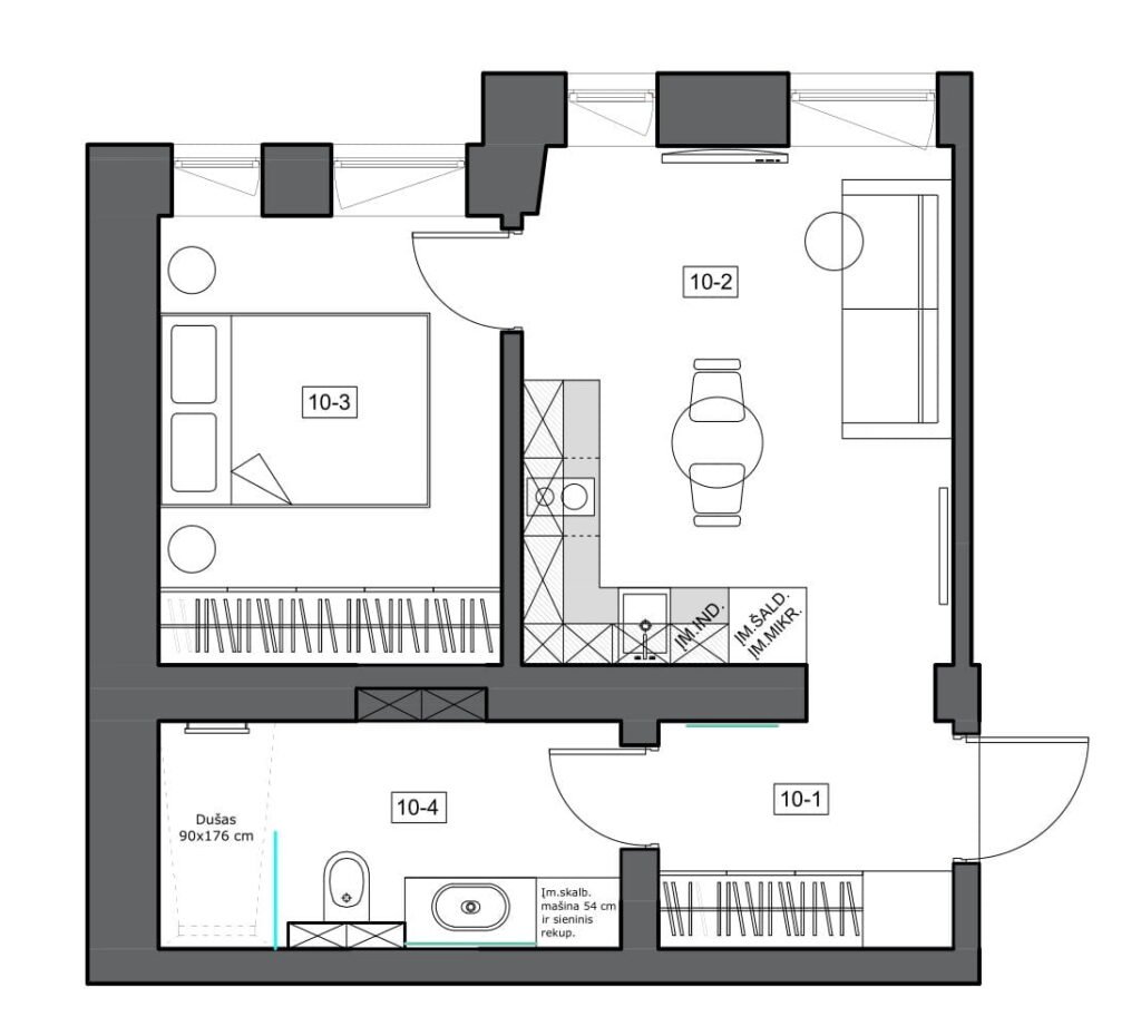
10 butas
| 10-1 | Prieškambaris | 4.00 |
| 10-2 | Bendra erdvė | 13.28 |
| 10-3 | Miegamasis | 9.19 |
| 10-4 | San. mazgas | 6.28 |
| 32.75 m2 |

11 butas
| 11-1 | Bendra erdvė | 16.80 |
| 11-2 | San. mazgas | 4.70 |
| 21.50 m2 |

12 butas
| 12-1 | Virtuvė, prieškambaris | 12.04 |
| 12-2 | San. mazgas | 4.02 |
| 12-3 | Svetainė | 10.57 |
| 26.63 m2 |

13 butas
| 13-1 | Bendra erdvė | 21.14 |
| 13-2 | Miegamasis | 12.63 |
| 13-3 | San. mazgas | 5.02 |
| 13-4 | Miegamasis | 10.71 |
| 49.50 m2 |













